Casa IV - Eduardo Boeing








Localizada em Penha, Santa Catarina, essa casa combina estilo contemporâneo e soluções inteligentes para otimizar o pouco espaço disponível para construção, num terreno de esquina de apenas 81,00 m². Com uma área total de 97,44 m² distribuídos em dois pavimentos, esse sobrado combina funcionalidade e estilo para atender às necessidades de uma família moderna.
No pavimento térreo, encontramos os setores de serviço e social, projetados para atender às necessidades práticas e promover interação entre os moradores e visitantes. A cozinha integrada à sala de estar cria um ambiente acolhedor e propício para momentos de convívio. Além disso, um lavabo e uma despensa sob a escada foram incorporados, aproveitando cada centímetro disponível de forma inteligente.
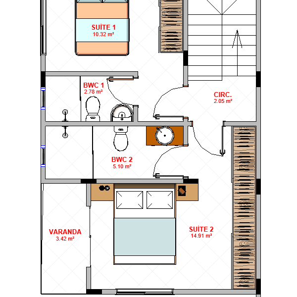
No pavimento superior, está localizado o setor íntimo da casa, com duas suítes projetadas para proporcionar conforto e privacidade. A suíte principal se destaca por sua amplidão e possui uma sacada que oferece uma vista encantadora do entorno. Os proprietários solicitaram uma ampla porta e janela de vidro, permitindo uma conexão visual com a área externa e o aproveitamento da iluminação natural.
A arquitetura contemporânea da casa apresenta um estilo clean e sofisticado. O telhado oculto por platibandas confere uma aparência moderna e elegante. A torre da caixa d’água sobre os banheiros adiciona um elemento visual interessante à fachada, juntamente com os detalhes dos beirais que se conectam a outros elementos arquitetônicos, que valorizam a estética da casa.
A Casa IV é um exemplo de como é possível criar um projeto residencial eficiente e atraente mesmo em um espaço limitado. Cada aspecto foi cuidadosamente considerado para garantir uma experiência de vida confortável e funcional. Com uma abordagem contemporânea e soluções inteligentes de design, essa casa encanta pela sua simplicidade e praticidade.
